BROKEN HILL HOUSE
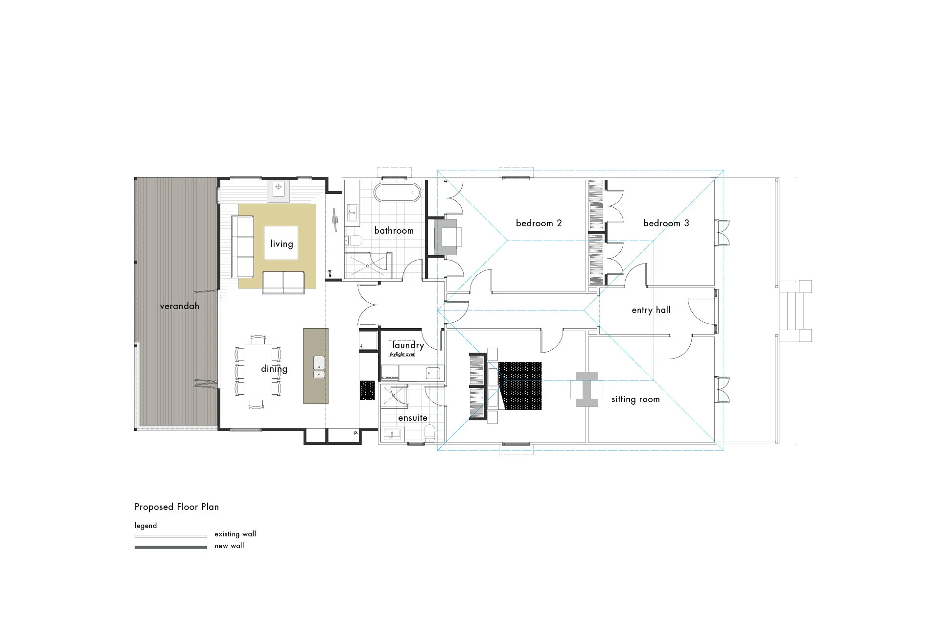
The owners of this home, a typical example of Edwardian housing in Outback Australia, required a modern addition to the rear which would connect with the garden and provide much-needed protection from harsh sun, wind and dust.
The design provides a modern open plan living/dining/kitchen deliberately set apart from the existing house to affirm the distinct historical eras (a century apart). The four existing large rooms were to be re-purposed; one as a front sitting room and one as a main bedroom with ensuite bathroom, the other two as bedrooms. The underlying intention was to alter the existing house as little as possible and contrast this with a thoroughly modern, thermally effective addition with a deep, shady verandah for outdoor living.
