CAMPBELLS BAY HOUSE

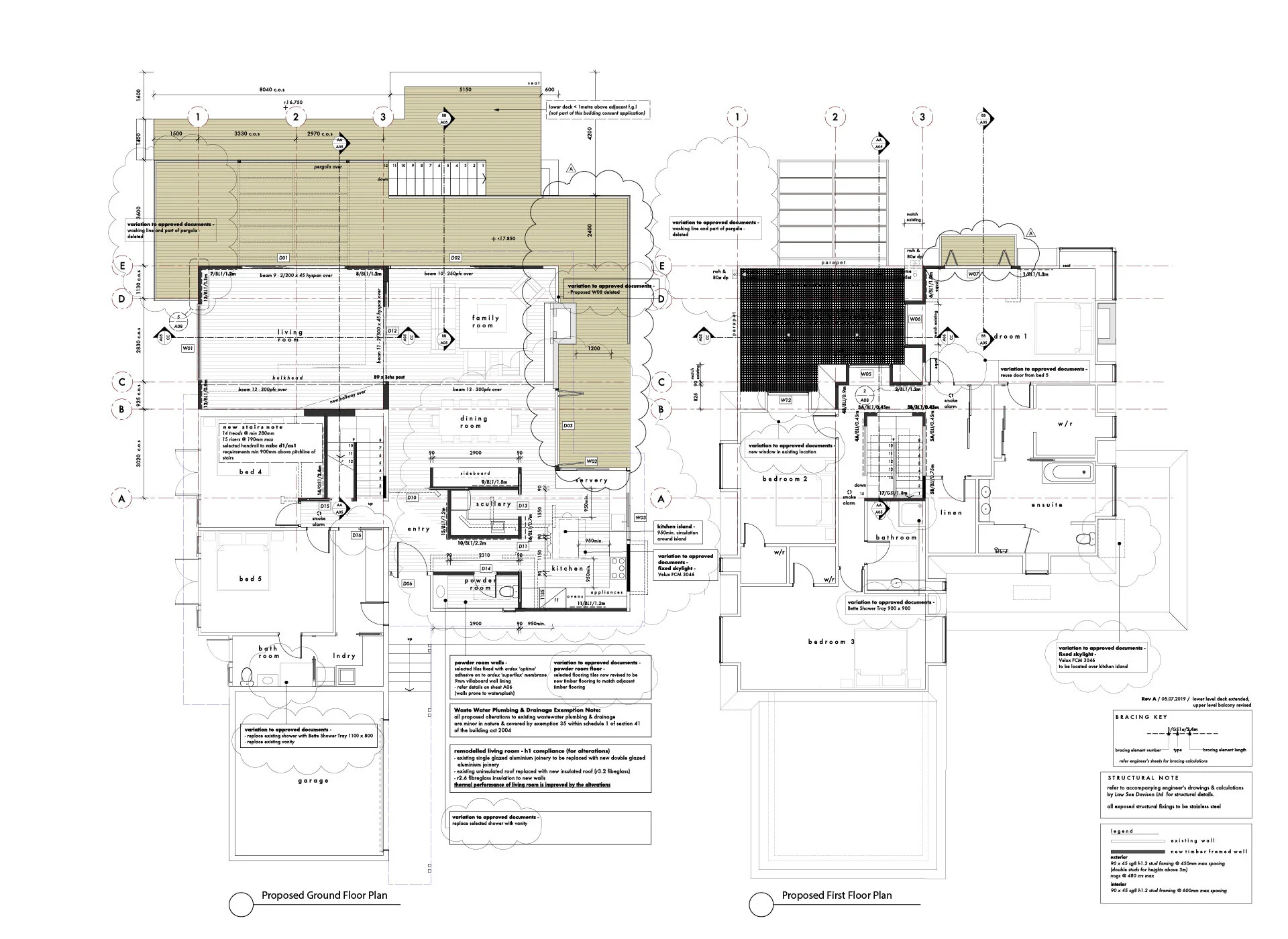
Previous alterations and additions had greatly increased the footprint of this originally modest holiday home, not far from the beach and adjacent to a substantial bush reserve.  The brief for this project called for a reworking of the existing main floor, provision of a new light-filled stairwell and renovations to the main bedroom on the first floor.  All existing flooring and door/window joinery needed to be replaced and the dated kitchen required a total renovation. The brief provided an opportunity to promote a much stronger connection to the bush reserve with generous indoor/outdoor flow from all the ground level rooms.

The design response created a completely new interior layout to the main floor with only minor additions to the footprint.  A new entry axis runs north/south across the house, visually linking the entry with the garden and bush beyond.  A new family living/dining/kitchen area runs the full width of the eastern side of the house.  On the western side a new separate sitting room opens onto an expansive north-facing deck which is linked to the family living area, inside and out.  Existing ground floor bedrooms and bathrooms have been fashioned into a suite of guest rooms (one with ensuite bathroom), a powder room and laundry. 

The first floor is now accessed via a large open stairwell with roof windows and wrap-around gallery circulation linking the bedrooms.  The former main bedroom has been enlarged and now has a small balcony which overlooks the garden and bush reserve.

Residential type: Alterations and Additions

Completed: 2019

Structural Engineer: Charles Sue, Law Sue Davison Ltd

Builder: Court Construction Ltd